今すぐ無料の会員登録で
閲覧可能物件数が
+2
営業時間: 10:00~19:30
定休日: 毎週火曜日・水曜日
建物
物件画像
NO IMAGE
周辺環境
QRコードをスキャンして携帯でもご覧になれます。

品川区東五反田1丁目中古戸建

中古一戸建て
1億600万円
    東京都品川区東五反田1丁目

    都営浅草線 高輪台駅 徒歩 5分

    山手線 五反田駅 徒歩 9分

    NEW現地見学会おすすめ会員限定
    間取り
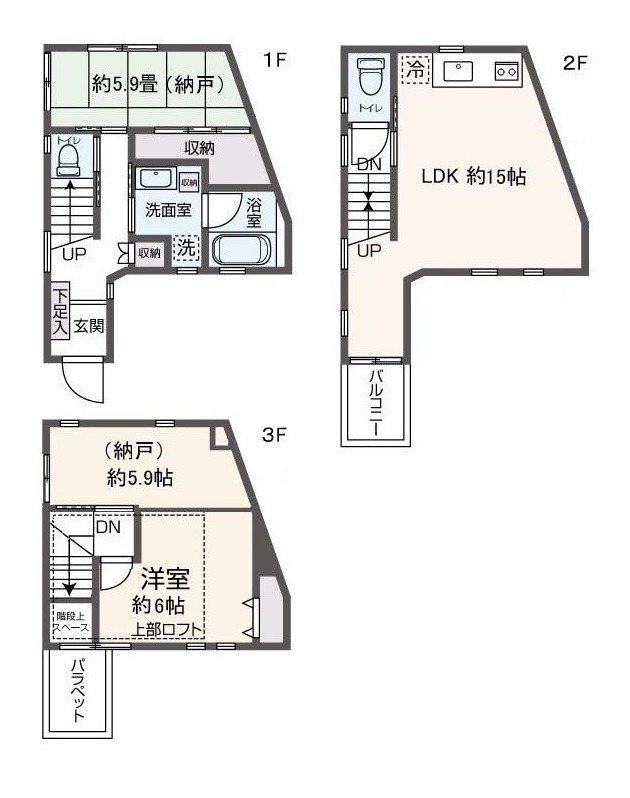
    1LDK+2S(納戸)
    築年月
    2005年11月完成
    土地面積
    60.02㎡(18.15坪)[公簿]
    建物面積
    83.23㎡
    今すぐ会員登録する資料請求お気に入りに追加
    お問い合わせ先: 0120-021-773
    電話でお問合せする

    自分がお客様になったつもりで、一人ひとりのご希望に添えるよう、丁寧に住宅探しのお手伝いをさせていただきます。不安なことがありましたら、お気軽にご連絡ください。よろしくお願いします。

    物件情報
    名称
    品川区東五反田1丁目中古戸建
    価格
    1億600万円(税込)
    所在地
    東京都品川区東五反田1丁目
    交通

    都営浅草線 高輪台駅 徒歩 5分

    山手線 五反田駅 徒歩 9分

    間取り
    1LDK+2S(納戸)
    建物現況
    完成済
    建物面積
    83.23㎡
    土地面積
    60.02㎡(18.15坪)[公簿]
    地目
    宅地
    土地権利
    所有権
    築年月
    2005年11月完成
    建物構造
    木造(W)
    建物階建
    3階建
    都市計画
    /市街化区域
    用途地域
    /第一種中高層住居専用地域
    建ぺい率/容積率
    60%/200%
    セットバック
    あり 面積2.47㎡
    私道負担
    なし
    接道状況
    一方 南東:幅員3.4m公道
    地域地区
    準防火地域 高度地区
    引渡時期
    相談
    物件情報更新日
    2026年04月09日(物件情報更新日より14日以内に更新)
    物件コード
    15439
    取引態様
    仲介
    今すぐ会員登録する資料請求お気に入りに追加
    お問い合わせ先: 0120-021-773
    電話でお問合せする
    ランドスクエア
    ランドスクエア
    〒141-0022
    東京都品川区東五反田1丁目22-6 五反田さくらビル6階
    0120-021-773
    営業時間:10:00~19:30 定休日:毎週火曜日・水曜日
    外観
    間取図/区画図
    外観
    リビング
    間取図/区画図
    外観
    リビング
    スマートフォン版の表示に切り替える